Mặt bằng công năng là gì?
CẬP NHẬT NGÀY 29/07/2023
Mặt bằng là mặt cắt ngang của ngôi nhà theo chiều nhìn từ phía trên xuống. Nhưng bạn có biết Mặt bằng công năng là gì chưa? Nên hiểu mặt bằng công năng là như thế nào? Vì sao lại cần loại mặt bằng này? Hãy cùng theo dõi bài viết dưới đây để xem thêm chi tiết nhé.

1. Mặt bằng công năng là gì?
Mặt bằng công năng thể hiện sự phân chia, bố trí các không gian. Là yếu tố cơ bản để gia chủ có thể hiểu được mọi việc từ thiết kế kiến trúc cho đến nội thất thi công. Cho dù xây mới đến cải tạo. Tất cả các chi tiết từ khung xương, bản vẽ mặt bằng công năng cung cấp cho bạn những cái nhìn tổng quan từ kích thước, quy mô, đường đi giữa các không gian, vị trí đặt đồ nội thất….

Khi nhìn vào một Mặt bằng công năng bạn có thể hình dung sơ bộ về không gian tổng thể trước khi đi vào thi công thực tế. Nói một cách dễ hiểu nhất thì hình dáng của các không gian được thể hiện qua hình ảnh trực quan khi nhìn vuông góc từ trên xuống không gian mà không bị ngăn cách.
Từ những Mặt bằng công năng này mà gia chủ có thể biết được các chi tiết trong không gian tổng thể. Bản vẽ giúp định vị chức năng và cách bố trí các món nội thất trong không gian. Có thể nói, mặt bằng là yếu tố cơ bản và tiên quyết nhất thể hiện được tư duy thiết kế của kiến trúc sư trong những không gian bị giới hạn.

Bạn cũng có thể dễ dàng hình dung công trình trong mối tương quan với môi trường xung quanh thông qua hệ thống cửa sổ, cửa chính,…
Xem thêm MẶT BẰNG CHUNG CƯ
2. Bản vẽ mặt bằng công năng gồm những gì?
Một trong những cách hiệu quả nhất để hiểu và để mặt bằng công năng phát huy tối đa hiệu quả. Bạn hãy tưởng tượng khi bước vào nhà, theo hệ thống cửa chính, cửa ra vào các không gian. Một khi bước vào không gian, bạn có thể cảm nhận được không gian này sang không gian khác.
Mỗi đơn vị thiết kế sẽ có những cách thể hiện khác nhau gồm các thông tin cơ bản như tỷ lệ bản vẽ chiếu theo diện tích thực tế. Các chú thích không gian, thông in tư vấn thiết kế….

2.1 số lượng và diện tích các không gian chức năng
Các phân khu chức năng thường được khoanh vùng và ký hiệu để tạo ra cái nhìn chung nhất về vị trí, cách sắp xếp, tương quan với các bộ phận xung quanh và với tổng thể không gian.
Gia chủ có thể hình dung được hệ thống giao thông trong công trình và cân nhắc xem nó thực sự đáp ứng được nhu cầu và có phù hợp hay chưa.

2.2 Hệ thống tường
Tường là một trong những yếu tố vô cùng quan trọng cho bất cứ một công trình nào. Nó thể hiện được sự phân chia không gian, dù là thiết kế nội thất hay ngoại thất. Kích thước tường phụ thuộc vào nhiều yếu tố như quy mô công trình. Độ dày mỏng của tường có tương quan với những nơi khác hay không.
Xem thêm MẶT BẰNG PHÒNG NGỦ MASTER
2.3. Định vị các món đồ nội thất trong không gian
Một trong những yếu tố quan trọng bậc nhất là cần thể hiện được các thiết bị nội thất cơ bản. Bạn có thể tùy chỉnh vị trí của các món nội thất lớn nhỏ khác nhau sao cho đảm bảo được các không gian đi lại.

4. Hệ thống cửa
Cửa đi và cửa sổ là hai yếu tố quan trọng cấu thành một Mặt bằng công năng tốt. Bản vẽ mặt bằng cần định vị chính xác vị trí và kích thước. Bạn cũng nên chú ý đến cửa đi giữa các phòng vì nó thể hiện được rõ ràng sự thông thoáng, thuận tiện trong việc di chuyển.
Chủng loại cửa, số lượng cửa hay đại loại cửa mở vào trong hay ngoài cũng ảnh hưởng nhiều đến việc bố trí nội thất trong không gian.
5. Hệ thống cầu thang
Cầu thang thể hiện cách thức di chuyển giữa các tầng nhà, chúng chiếm một khoảng không gian đáng kể. Bạn cần xác định rõ vị trí của nó trong mặt bằng xem nó có thuận tiện cho việc di chuyển không. Sau đó chú ý đến yếu tố kích thước cầu thang.

6. Hộp kỹ thuật
Hộp kỹ thuật là một yếu tố vô cùng quan trọng đảm bảo các yếu tố kỹ thuật của cả công trình. Vị trí hộp kỹ thuật cần bố trí một cách khéo léo để đảm bảo tính thẩm mỹ của các công trình và các yếu tố kỹ thuật.
Khi xây dựng, hoàn thiện ngoài yếu tố bền chắc còn đảm bảo yếu tố thẩm mỹ vì vậy hiện nay khi hoàn thiện nhà, các hệ thống kỹ thuật thường được bố trí âm tường hoặc hộp kỹ thuật.
3. Lưu ý khi thiết kế Mặt bằng công năng là gì?
Thiết kế mặt bằng công năng là một trong những việc vô cùng quan trọng vì nó quyết định yếu tố cốt lõi của một ngôi nhà. Nhờ nó mà gia chủ có thể xác định chính xác về kích thước, diện tích sử dụng, sắp xếp nội thất, bố trí chức năng… Vậy khi lên ý tưởng thiết kế thì cần lưu ý những điều sau:

Thứ nhất, nhu cầu của gia đình. Việc tìm hiểu nhu cầu sử dụng trước khi bắt tay vào thiết kế chính là bước đầu tiên để hình thành nên căn nhà. Mỗi gia đình có nhu cầu sử dụng và trang trí nội thất khác nhau. Bởi vậy trước khi lên ý tưởng thiết kế Mặt bằng công năng thì gia chủ nên xác định được nhu cầu sử dụng.
Thứ hai, phong cách thiết kế chủ đạo. Mỗi một ngôi nhà đều có những luồng gió về mặt phong cách khác nhau tùy thuộc vào sở thích của gia chủ. Bởi vậy cần tìm hiểu về nhu cầu, sở thích của gia chủ cũng như các thành viên trong gia đình mà lên ý tưởng thiết kế Mặt bằng công năng cho phù hợp.
Xem thêm MẶT BẰNG PHÒNG TẮM

Thứ ba, yếu tố phong thủy cần được xem xét. Phong thủy là yếu tố được coi trọng trong việc xây dựng nhà ở Việt Nam. Các gia chủ thường muốn đơn vị thiết kế công năng làm sao để ngôi nhà của mình mang lại sự bình an và thịnh vượng cho gia đình.
Thông thường các yếu tố phong thủy cần được xem xét đó là hướng nhà, hướng bàn thờ, hướng bếp,… Vì vậy đòi hỏi kiến thức có sự tìm hiểu và bố trí cho hợp lý giữa các nhu cầu sử dụng với các yếu tố phong thủy.
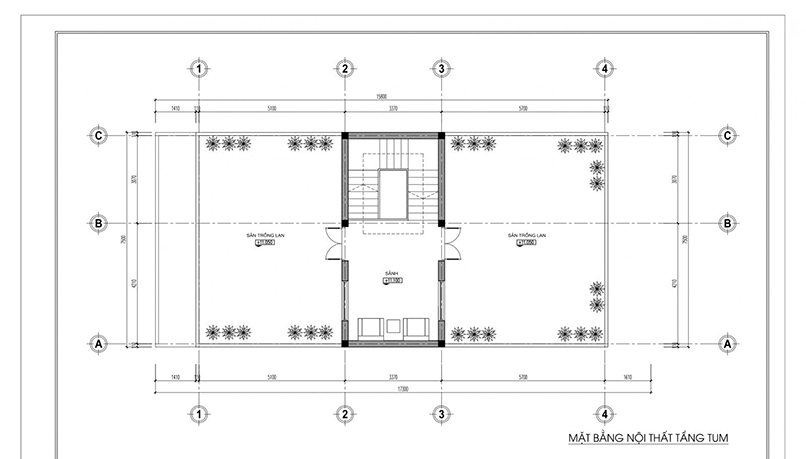
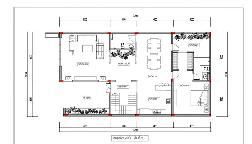
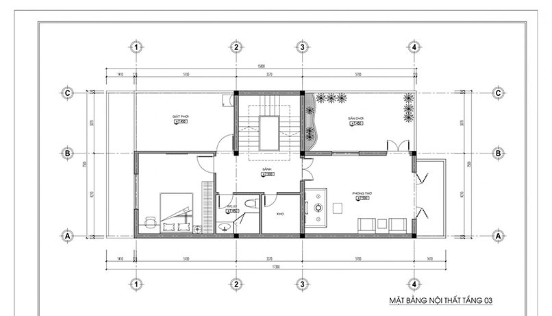
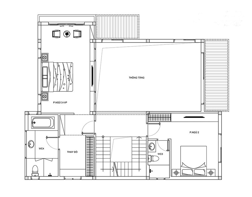
5. Ý tưởng bản vẽ Mặt bằng công năng miễn phí
Đến đây bạn có thể hiểu được Mặt bằng công năng là gì rồi đúng không? Bạn có thể hiểu được những yếu tố có trong bản vẽ mặt bằng công năng rồi đúng không? Chúng tôi cũng cung cấp cho bạn những ý tưởng bản vẽ mặt bằng công năng miễn phí bạn có thể tham khảo. Hy vọng bài viết này sẽ hữu ích đối với bạn.
BÀI VIẾT LIÊN QUAN

Nếu bạn muốn thiết kế nội thất Đà Nẵng hãy liên hệ chúng tôi. Đội ngũ thiết kế của VN Thing vẫn cần mẫn làm việc hết sức hăng hái.
VN Thing ĐANG Ở ĐÀ NẴNG
- Điện thoại: 0901 998 468
- Messenger: https://m.me/noithat.Thing
- Chat Zalo: https://zalo.me/0901998468
- Địa chỉ: Tầng 2, số 45 Trần Ngọc Sương, Cẩm Lệ, Đà Nẵng





































