Sơ đồ nhà bếp nhỏ
CẬP NHẬT NGÀY 12/10/2023
Mọi tu sửa và trang bị nội thất đều bắt đầu từ kế hoạch chi tiết về vị trí cho từng hạng mục nội thất và các chức năng. Và vì nhà bếp là một trong những phòng phức tạp nhất về mặt tổ chức không gian, nên việc có một sơ đồ nhà bếp nhỏ, một mặt bằng tỉ mỉ là điều vô cùng quan trọng. Tùy thuộc vào đặc điểm kiến trúc, không gian có sẵn và bố cục tổng thể mà người ta có thể quyết định cách bố trí bếp nào phù hợp nhất cho từng trường hợp cụ thể.

Chúng tôi sẽ đánh giá chi tiết về tất cả các loại mặt bằng nhà bếp. Trong bài viết này để tạo điều kiện thuận lợi cho việc lựa chọn tổ chức nhà bếp. Tuy nhiên, mọi gia chủ sớm muộn gì cũng sẽ cầm trên tay bản vẽ sơ đồ mặt bằng. Tốt hơn hết là bạn nên chuẩn bị và định hướng cho mình trong số các bản phác thảo thiết kế có thể có.
Lựa chọn trong số các cách bố trí nhà bếp rộng rãi nhất, hãy chú ý đến sơ đồ mặt bằng tổng thể của tầng. Nhà bếp kiểu ống xoắn rất tiện lợi cho những căn phòng kín hẹp, những kiểu bếp còn lại có thể hữu ích cả trong không gian đóng và mở.
Tham khảo thêm MẶT BẰNG CHUNG CƯ
1. Sơ đồ mặt bằng nhà bếp hình chữ G hiện đại
Bố cục hình dạng G tương đối mới. Điều này là do sự thuận tiện tốt nhất của bó đối với thiết kế nhà bếp mở và bố trí sàn. Kết thúc của set đồ thường là quầy bar với ghế đẩu. Do đó, khu vực ăn uống ngẫu hứng có thể đóng vai trò là yếu tố phân vùng giữa nhà bếp và phòng khách.
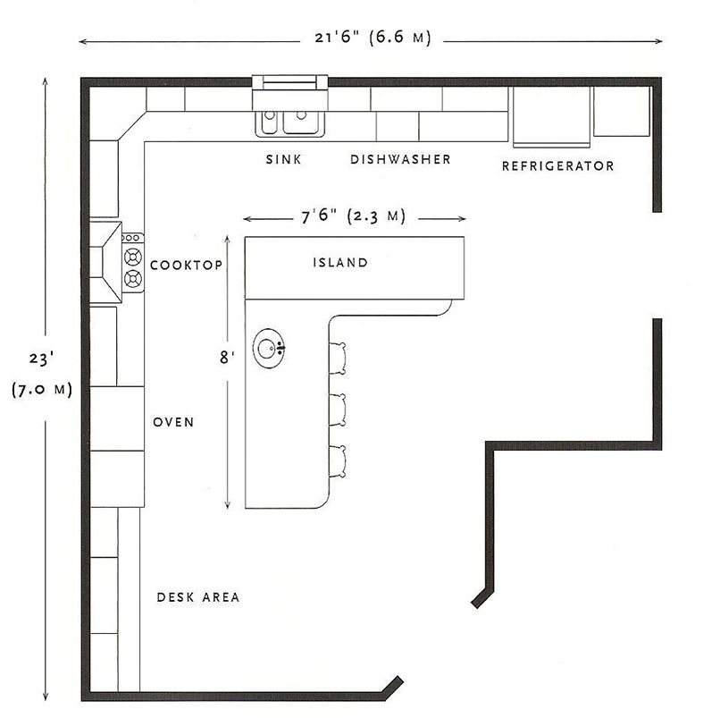
2. Sơ đồ mặt bằng nhà bếp hình chữ U
Bếp hình chữ U là kiểu thiết kế nhà bếp khá phổ biến và đa năng. Thông thường, kiểu bố trí này sử dụng không gian ngưỡng cửa sổ để đặt chỗ nghỉ. Tuy nhiên, bếp hình chữ U trước hết phù hợp với không gian kín. Bạn có thể thấy các biến thể phổ biến nhất của việc tổ chức bố cục chữ U tượng trưng tại nhà bếp của bạn với tất cả các yếu tố chức năng.
Tham khảo thêm Thiết kế MẶT BẰNG PHÒNG NGỦ MASTER

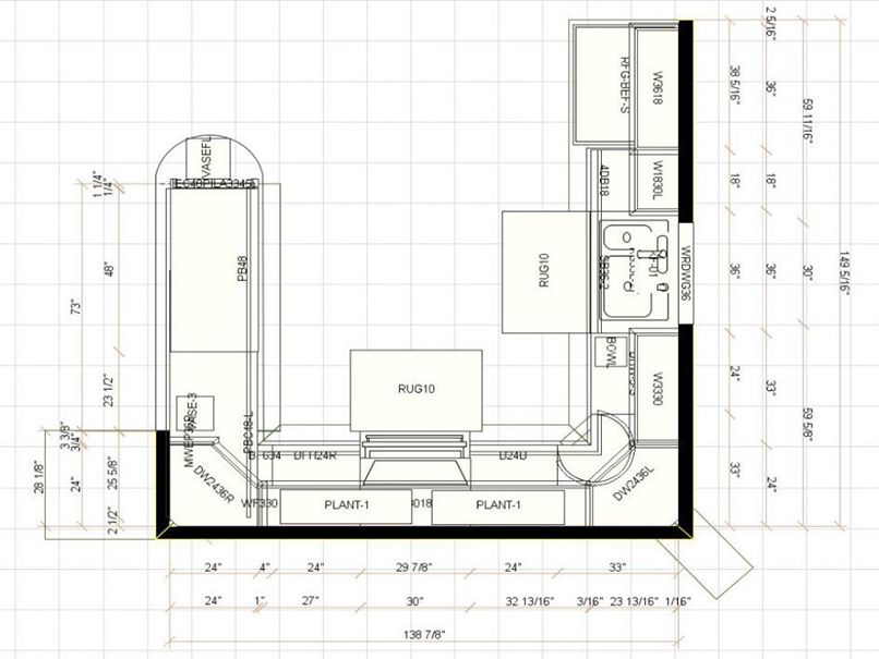
Thông thường, sơ đồ mặt bằng đi kèm với các dấu hiệu sơ đồ của tất cả các yếu tố trong nhà bếp với kích thước và vị trí của chúng. Mỗi món đồ nội thất và thiết bị đều có tên viết tắt của nó. Vì vậy, chúng ta hãy thử đọc các mật mã sau đây.

Các ngăn kéo treo ở tầng trên thường được đánh dấu bằng chữ “W”. Tủ đứng ở dưới được đánh dấu bằng chữ “B”. Sau đó, chúng ta có thể thấy bốn chữ số thường có nghĩa là kích thước của tủ. Hai chữ số đầu tiên có nghĩa là chiều rộng của mục (từ trái sang phải). Hai chữ số cuối cùng có nghĩa là chiều cao.
Nếu chỉ có hai hoặc ba chữ số sau loại ngăn kéo thì nó thường có nghĩa là chiều rộng. Chiếu cao của tủ được ngụ ý là tiêu chuẩn cho khu vực của bạn (chỉ định nó với nơi cung cấp của bạn). Các biện pháp được chỉ ra bằng inch hoặc cm.

Đồ chìm là “S” hoặc “SB” tại các điểm đánh dấu. Tủ lạnh- “REF” hoặc không được viết tắt. Bếp gas- “RGE” hoặc không được viết tắt. Máy rửa bát, máy giặt hoặc sấy khô thường không được viết tắt.

Bạn có thể nhận được bản vẽ mặt bằng nhà bếp rất chi tiết với vị trí ngụ ý gầm quầy, đèn âm tường, loại mặt bàn và thậm chí cả ngăn kéo bằng một quả cầu ứng dụng. Tất nhiên, đây là biến thể dễ chịu nhất.


BÁO GIÁ TỦ BẾP
NẾU BẠN Ở ĐÀ NẴNG, HÃY NHẤN VÀO NÚT BÊN DƯỚI ĐỂ XEM BÁO GIÁ THI CÔNG TỦ BẾP
3. Sơ đồ nhà bếp Gelley
Chúng tôi khuyên bạn nên từ chối thiết kế hình chữ U trong nhà bếp nhỏ có hình dạng hẹp. Có khả năng xác định vị trí tất cả các yếu tố chức năng và thiết bị cần thiết ở đây mà không ảnh hưởng lộn xộn, thậm chí hy sinh khu vực cửa sổ. Bạn có thể thử dạng bếp Galley có thể bố trí cửa sổ.
Tham khảo các thiết kế MẶT BẰNG PHÒNG TẮM

4. Đánh giá chi tiết về sơ đồ tầng nhà bếp cho tất cả các loại. Bếp hình chữ L
Có lẽ là kiểu bố trí nhà bếp phổ biến và rộng rãi nhất. Nó mang lại cơ hội để đặt nhà bếp hoặc khu vực nấu ăn ở bất cứ đâu tại nơi này. Nó chỉ nên có một góc. Cách bố trí như vậy chiếm ít không gian hơn với chức năng và thoải mái tối đa.
Thiết kế độc đáo nhất là nhà bếp đôi hình chữ L, nơi đặt đồ nội thất và đảo lặp lại hình thức chính của căn phòng.
Trên đây là những gợi ý về sơ đồ nhà bếp nhỏ về các loại bếp với nhiều thiết kế khác nhau. Hy vọng bạn sẽ hiểu được có bao nhiêu loại thiết kế bếp. Bài viết này có hữu ích với bạn không? Nếu có hãy để lại một đánh giá và bình luận nhé.
Nếu bạn muốn thiết kế nội thất Đà Nẵng hãy liên hệ chúng tôi. Đội ngũ thiết kế của VN Thing vẫn cần mẫn làm việc hết sức hăng hái.
VN Thing ĐANG Ở ĐÀ NẴNG
- Điện thoại: 0901 998 468
- Messenger: https://m.me/noithat.Thing
- Chat Zalo: https://zalo.me/0901998468
- Địa chỉ: Tầng 2, số 45 Trần Ngọc Sương, Cẩm Lệ, Đà Nẵng











