Cấu tạo móng đơn
CẬP NHẬT NGÀY 02/09/2023
Móng là yếu tố vô cùng quan trọng trong thi công xây dựng các công trình dù là nhà ở hay bất kể một công trình nào. Bởi vậy trong quá trình thiết kế móng cần bảo đảm tiêu chuẩn nhằm giúp công trình có độ bền cao. Vậy bạn đã bao giờ nghe đến móng đơn là gì? Cấu tạo móng đơn như thế nào mới đúng? Quá trình thi công như thế nào? Hãy cùng xem tiếp bài dưới dưới đây.

1. Móng đơn là gì?
Móng đơn (còn gọi là móng Cốc) là một loại móng đỡ 1 hoặc cụm cột. Được sử dụng thông dụng cho những công trình dưới 3 tầng nên nó phổ biến nhất trong thiết kế nhà ở. Móng đơn được bố trí dưới chân cột, có thể làm móng cứng, móng riêng lẻ hay móng mềm và thường được gia cố kỹ càng.
Đây là móng dễ thi công và rẻ nhất nên nó giúp chủ nhà, chủ đầu tư tiết kiệm khá khá chi phí. Tác dụng chịu lực của móng đơn sẽ phụ thuộc vào thành phần cấu tạo và mác bê tông. Sử dụng loại móng này áp dụng cho các công trình có tải trọng nhẹ và nền khu vực xây dựng móng cũng phải có độ cứng và tính ổn định.
Tham khảo thêm NHÀ TIỀN CHẾ LÀ GÌ?

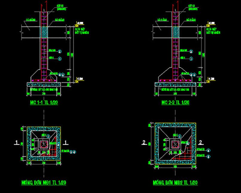
2. Cấu tạo móng đơn
Cấu tạo móng đơn rất đơn giản, nếu làm bằng gạch thì gồm các lớp gạch xếp chồng lên nhau. Còn nếu móng đổ bê tông cốt thép thì sẽ gồm các thành phần như:
- Lớp bê tông lót móng: Dày khoảng 100mm. Nó được cấu thành từ bê tông 4×6 hoặc bê tông vữa và vữa xi măng mác 50-100. Phần này có nhiệm vụ làm sạch, làm phẳng hố móng, chống mất nước xi măng và còn là ván khuôn để đổ bê tông móng.
- Phần móng (bản móng): Thường có đáy hình chữ nhật, bị vát có độ dốc vừa phải và được tính toán kỹ càng để phù hợp với từng loại thiết kế.
- Cổ móng: Đây là nơi có kích thước lớn hơn phần cột ở trên mỗi chiều khoảng 25mm. Phần này có tác dụng truyền lực, tải trọng từ cột xuống đáy móng.
- Giằng móng: Có tác dụng đỡ tường ngăn bên trên và làm giảm độ lún lệch giữa các móng trong công trình. Khi giằng móng nó thường kết hợp với việc giằng móng để làm giảm độ lệch tâm của móng thì phải tính toán nó như một dầm trong kết cấu khung.

Lưu ý: Độ sâu của móng so với mặt đất lúc nào cũng phải lớn hơn 1m. Những nền đất yếu thì không nên dùng cấu tạo móng đơn, hoặc muốn thì cần tính toán kỹ về kết cấu, nền đất cần gia cố thêm bằng cọc tre.
Cấu tạo thép làm móng đơn: Thép được thi công làm móng đơn sẽ có cấu tạo từ loại thép chất lượng nhất. Cốt thép móng đơn có thể gia công tại hiện trường hay tại các nhà máy. Nhưng phải thực hiện đúng quy cách bản vẽ kỹ thuật. Tất cả các bề mặt ở công trường, lắp ráp theo đúng bản vẽ thiết kế móng.
Trong công tác nối- hàn cũng cần đảm bảo những mối nối chắc chắn. Tránh bén hơi nóng làm cháy cốp pha. Các cây thép phải được đảm bảo không dính bùn đất, dầu mỡ hay rỉ sét. Nếu trường hợp các thanh sắt bị bẹp hay cắt giảm tiết kiệm không được vượt quá 2%. Các mối hàn phải đảm bảo lớn hơn 10d, buộc nối lớn hơn 30d, hàn nối cần được làm sạch, các đầu thép cần được bảo vệ bằng những túi ni lông.

Cấu tạo đơn cừ tràm: Để thi công xây móng đơn cừ tràm vững chắc cần xử lý 1 nền móng cứng cáp. Dùng cừ tràm để gia cố là biện pháp được sử dụng khá nhiều trong xây dựng bởi độ tiện lợi cùng với giá thành khá rẻ so với nguyên liệu tổng hợp khác. Móng đơn chỉ là nơi chịu lực gián tiếp còn trọng lượng từ công trình xây dựng sẽ ở dưới đất nền.
Xem thêm SƠ ĐỒ CẤP THOÁT NƯỚC NHÀ DÂN DỤNG
3. Phân loại của móng đơn
3.1 Phân loại dựa vào đặc điểm của tải trọng
Theo các này người ta chia móng đơn thành các loại:
- Móng chịu tải đúng trọng tâm.
- Móng chịu tải lệch tâm.
- Móng các công trình cao như: tháp nước, bể chứa, ống khói.
- Móng chịu lực ngang lớn như: tường chắn, đập nước…
- Móng chịu tải trọng thẳng đứng.
3.2 Dựa vào độ cứng của móng đơn
- Móng tuyệt đối cứng: là móng có độ cứng rất lớn và có độ biến dạng thấp nên loại này thường có móng gạch, đá, bê tông.
- Móng mềm: Móng này có khả năng biến dạng cùng cấp với đất nền, móng này có tỷ lệ cạnh dài/ngắn lớn hơn 9 thuộc loại móng mềm.
- Móng cứng hữu hạn: Móng bê tông cốt thép có tỷ lệ cạnh dài/ngăn dưới 8

3.3 Dựa vào cách thức chế tạo
- Móng toàn khối: Đây là móng được làm từ các vật liệu khác nhau, chế tạo ngay tại vị trí xây dựng.
- Móng lắp ghép: Móng do nhiều khối lắp ghép chế tạo sẵn sàng ghép lại với nhau khi thi công móng công trình.
4. Tiêu chuẩn thiết kế móng đơn và cách tính cấu tạo móng đơn
4.1 Tiêu chuẩn thiết kế móng đơn
- Việc chọn biện pháp thi công, xây dựng móng đơn phải xem xét đến những số liệu khảo sát địa chất. Phải tiến hành bổ sung tính toán nếu nằm trong trường hợp điều kiện địa chất không phù hợp với cấu tạo móng đơn.
- Mọi vật liệu, máy móc trang thiết bị hỗ trợ, bộ phận kết cấu dùng khi thi công xây dựng móng đơn phải thỏa mãn những yêu cầu của thiết kế.
- Khi xây dựng móng đơn cần phải có sự kiểm tra kỹ thuật của cơ quan.

4.2 Cách tính toán cấu tạo móng đơn
Biến dạng nền không quá lớn thì chúng ta áp dụng công thức đàn hồi tính những đặc trưng biến dạng. Tận dụng khả năng làm việc của nền trong giai đoạn biến dạng tuyến tính. Chúng ta có thể tính móng đơn theo quy trình kỹ thuật như sau:
- Khi tải trọng đúng với trọng tâm: P nhỏ hơn hoặc bằng R
- Khi tải trọng lệch với tâm: P nhỏ hơn hoặc bằng 1.2R (Trong đó: P là áp suất đáy móng trung bình và lớn nhất; R là cường độ tiêu chuẩn của đất nền).
- R = m(A. y.b + B.q + D.c) (3). (Trong đó: b là chiều rộng của đáy móng; q là tải trọng bên của phần móng; c là lực dính đơn vị của lớp đất nền; A,B,D là các hệ số phụ thuộc vào góc ma sát trong của đất; m là hệ số điều kiện làm việc của nền móng đơn.
Tính toán móng đơn sẽ được áp dụng trong các nhà dân dụng, nhà xí nghiệp, trụ cầu nhỏ,… Khi gặp phải trường hợp chịu tải trọng lớn cần phải mở rộng đáy móng. Tăng cả chiều dài móng và chiều sâu chôn móng. Nhược điểm của móng cốc chỉ nên sử dụng trong trường hợp nền có sức chịu tải tốt.
Xem thêm cách tính móng đơn bằng chương trình excel như sau:
5. Cách thi công cấu tạo móng đơn
Bước 1: Công tác chuẩn bị
Gia chủ nên chuẩn bị vật tư máy móc và dụng cụ thi công để thực hiện các việc như đào đất, lắp ghép ván khuôn cũng như đổ bê tông….
Bước 2: Công tác đào hố móng, đổ bê tông lót móng
Đào hố móng bằng máy móc cùng thủ công sao cho kích thước đáy móng rộng ra so với kích thước đáy móng để dễ dàng đổ bê tông lót mỏng, ghép và chống cốt pha. Trong quá trình đào hố móng nếu nền đất yếu có nước, chúng ta có thể gia cố đất nền nền các biện pháp như cọc tre, cọc cừ, cát đệm…
Bước 3: Đổ bê tông
Sau khi đã lắp đặt cốt thép ván khuôn xong ta tiến hành nghiệm thu cần để ý cốt thép đúng chủng loại, đảm bảo neo nối đúng miền, ván khuôn định hình đúng kết cấu như bản vẽ, đảm bảo độ chắc chắn.
Nên đổ bê tông thương phẩm, nếu không được thì ta đổ bê tông trộn tay hoặc máy nhưng đảm bảo mác bê tông và độ sụt. Cần lưu ý trong quá trình đổ bê tông cần thường xuyên kiểm tra ván khuôn và cốt thép tránh sai lệch như trong bản vẽ kỹ thuật thiết kế.

Bước 4: Tháo cốp pha móng
Bê tông móng là cấu kiện được trực tiếp lên trên lớp nền cứng, chỉ chịu trọng lực của bản thân và lực xô ngang của thành nên chỉ cần đổ bê tông đạt độ liên kết cố định. Sau tầm 1, 2 ngày là có thể tháo ra được.
Bước 5: Kiểm tra chất lượng và bảo dưỡng
Bảo dưỡng bê tông móng là công đoạn cực kỳ quan trọng, sau khi đổ bê tông khoảng 4 tiếng phải tiến hành phun nước 1 lần để đảm bảo độ ẩm của bê tông.
Xem thêm NHÀ CONTAINER 2 TẦNG
6. Tham khảo thêm những bản vẽ cấu tạo móng đơn thông dụng
Trên đây là những thông tin về cấu tạo móng đơn được chúng tôi tổng hợp. Đến đây có lẽ bạn sẽ biết món đơn là gì? cấu tạo móng đơn gồm những gì? Hy vọng những thông tin này sẽ hữu ích đối với bạn.
| KHÁI TOÁN CHI PHÍ THI CÔNG NHÀ |
|---|
| Giá trị khái toán chỉ mang tính tương đối. Chi phí thi công nhà dựa vào rất nhiều yếu tố. Hãy gọi cho THING để gặp mặt Kiến trúc sư. |

Nếu bạn muốn thiết kế nội thất Đà Nẵng hãy liên hệ chúng tôi. Đội ngũ thiết kế của VN Thing vẫn cần mẫn làm việc hết sức hăng hái.
VN Thing ĐANG Ở ĐÀ NẴNG
- Điện thoại: 0901 998 468
- Messenger: https://m.me/noithat.Thing
- Chat Zalo: https://zalo.me/0901998468
- Địa chỉ: Tầng 2, số 45 Trần Ngọc Sương, Cẩm Lệ, Đà Nẵng

















