Bản vẽ nội thất
CẬP NHẬT NGÀY 24/07/2023
Bản vẽ nội thất chuẩn xác nhất như thế nào là một vấn đề được nhiều người đang có nhu cầu xây dựng nhà quan tâm. Bản vẽ thiết kế nội thất đóng vai trò rất quan trọng trong việc triển khai, thi công nhưng bạn có biết nên đọc bản vẽ thiết kế nội thất như thế nào? Vai trò của của các bản vẽ kỹ thuật nội thất là gì? Hãy cùng tham khảo bài viết dưới đây nhé.

1. Bản vẽ nội thất là gì?
Bản vẽ nội thất là phiên bản đồ họa bằng giấy thể hiện những chi tiết thiết kế nội thất của căn hộ. Để làm được điều này thì phải có kiến trúc sư phải có chuyên môn, kinh nghiệm thực tiễn và tính thẩm mỹ cao. Sau khi bản vẽ này được hoàn thiện thì nhân viên thi công sẽ căn cứ vào chi tiết của bản vẽ kỹ thuật nội thất này để tiến hành lắp đặt và bố trí nội thất.
Bản vẽ thiết kế nội thất giúp cho phần thiết kế bên trong trở nên hài hòa từ màu sắc, ánh sáng, thẩm mỹ kiến trúc, các vật trang trí để tổ chức không gian sống, không gian làm việc… Nhờ có bản vẽ chi tiết nội thất mà bạn có thể hình dung được căn nhà của mình sau khi thi công sẽ như thế nào. Kích thước nội thất ra sao cũng đều được kiến trúc sư đo đạc kỹ lưỡng và thể hiện trên bản vẽ.

Một bản vẽ nội thất gồm 3 phiên bản: Bản vẽ bố trí nội thất, bản vẽ nội thất 3D và bản vẽ triển khai kỹ thuật. Mỗi loại bản vẽ đều có một cách đồ họa và công dụng riêng.
- Bản vẽ thiết kế nội thất: Đây là bản phác thảo ban đầu, người thiết kế đồ họa sẽ dựa trên những yêu cầu của gia chủ để bố trí nội thất sao cho tối ưu diện tích căn hộ.
- Bản vẽ nội thất 3d: Đây là bản vẽ thiết kế nội thất này hoàn thiện từng chi tiết căn hộ, thể hiện không gian sống của gia đình mình. Nhìn vào bản vẽ, gia chủ có thể thấy được màu sắc, vật liệu, công năng của từng đồ dùng, từ đó đưa ra các yêu cầu chỉnh sửa hoặc triển khai thêm các chi tiết khác.
- Bản vẽ kỹ thuật nội thất: Các kiến trúc sư dựa trên bản vẽ 3D để mô tả rõ hơn các chi tiết kỹ thuật, kích thước nội thất để đơn vị thi công trực tiếp tiến hàn.
Xem thêm MẶT BẰNG CÔNG NĂNG LÀ GÌ?
2. Vì sao nên có bản vẽ nội thất?
Bản vẽ nội thất không những giúp bạn hình dung được không gian sống mà còn hỗ trợ đơn vị thiết kế thi công công trình dễ dàng triển khai công việc.
Thứ nhất, Tiết kiệm tối đa không gian và chi phí. Việc sở hữu một bản vẽ nội thất từ trước sẽ giúp gia chủ dự đoán được những món nội thất, kiểu dáng đồ dùng hợp nhất để lên danh sách mua sắm. Điều này góp phần tiết kiệm thời gian của gia chủ và hạn chế tối đa chi phí phát sinh.

Nếu không có bản vẽ phác thảo thiết kế nội thất, gia chủ không thể biết được vị trí cần lắp nguồn điện hệ thống cấp thoát nước… Điều này gây nhiều khó khăn, thậm chí là xung đột cho đơn vị bố trí nội thất và đơn vị bố trí điện nước gia dụng.
Xem thêm SƠ ĐỒ CẤP THOÁT NƯỚC NHÀ DÂN DỤNG
Thứ hai, dễ dàng chỉnh sửa theo ý muốn. Vì đây chỉ là bản phác họa thiết kế nên có thể tùy ý chỉnh sửa trước khi đưa vào thi công thực tế. Đồng thời, có thể dựa vào sở thích để thiết kế theo các phong cách điển hình như cổ điển, đương đại, hiện đại…
Thứ ba, bản vẽ nội thất giúp phác họa không gian sống. Bản vẽ phác thảo nội dung nội thất chung cư là phiên bản thu nhỏ của các không gian trên giấy, nó thể hiện rõ từng vị trí lắp đặt, bố trí nội thất. Dựa vào các bản thiết kế này mà gia chủ có thể đề xuất thêm, bớt số lượng tùy vào sở thích và nhu cầu sử dụng.

Thứ tư, tạo không gian màu sắc cân đối, hài hòa. Khi không có bản phác thảo nội thất, gia chủ không thể hình dung được cái nhìn tổng thể của không gian. Trong khi đó, nếu đồ họa bản vẽ từ trước, gia chủ có thể định hướng được không gian sống của mình và lựa chọn màu sắc đồ phù hợp.
3. Thế nào là một bản vẽ nội thất chuẩn nhất?
Bản vẽ nội thất chuẩn là một bản vẽ cần được thể hiện hết những chi tiết đồ nội thất về màu sắc, chất liệu, kích thước sao cho đẹp nhất. Bản vẽ cũng cần phải đáp ứng được yếu tố dễ nhìn, dễ hiểu cũng là một tiêu chuẩn cơ bản.
Bản vẽ nội thất cần thể hiện được ý đồ của kiến trúc sư, sở thích của gia chủ và sắp đặt nội thất, bố cục khoa học, trên cơ sở tận dụng tối đa diện tích sử dụng. Từ kích thước, đường nét, màu sắc,… các vật dụng, tường đều phải được thể hiện được chi tiết, chân thực.

Bản vẽ thiết kế đạt chuẩn sẽ giúp cho việc thi công nội thất dễ dàng hơn, việc tính toán khối lượng, vật tư, chi phí cụ thể rõ ràng hơn để tránh phát sinh sau khi thi công. Đây là cơ sở để gia chủ có thể kiểm tra được tốc độ công trình, độ chuẩn xác trong quá trình thi công.
Xem thêm SƠ ĐỒ NHÀ BẾP NHỎ
4. Các thành phần của bản vẽ nội thất
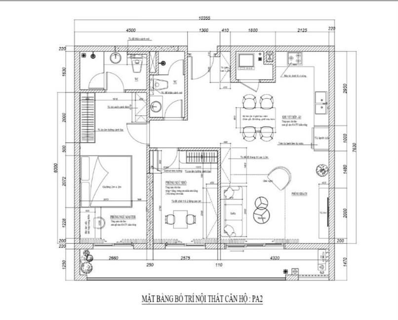
4.1 Bản vẽ bố trí mặt bằng sàn.
Bản vẽ bố trí mặt sàn là một trong những hình quan trọng nhất trong các bản vẽ. Mặt bằng cho ta biết kích thước và cách bố trí các phòng, lối đi, vị trí, kích thước, độ rộng dày tường. Ngoài ra có thể diễn tả trên mặt bằng có thiết bị, đồ dùng vệ sinh, tủ, giường, bàn ghế,…

4.2 Bản vẽ nội thất 3d
Bản vẽ nội thất 3d là bản vẽ thể hiện được công trình một cách đa chiều, rõ nét và chân thực nhất. Với bản vẽ nội thất 3d này gia chủ có thể quan sát được công trình sống động như thực ngay cả khi công trình chưa được xây dựng hoàn thiện.
Từ bản vẽ, bạn có thể dễ dàng quan sát một công trình dù nó chưa diễn ra, bạn có thể nhận được mô tả chi tiết nhất về thiết kế nội thất của công trình. Với việc linh động thay đổi góc nhìn, bạn sẽ quan sát chi tiết thiết kế, cho bạn cái nhìn tổng quan về công trình và có những điều chỉnh phù hợp.

4.3 bản vẽ nội thất 2D
Bản vẽ nội thất 2D là bản vẽ cung cấp chính xác thông tin chi tiết các sản phẩm, kích thước cũng như cái bài trí phù hợp cho công trình. Dựa vào bản vẽ nội thất 2d, người ta cần tính toán chi tiết về chi phí nguyên vật liệu. Cũng chính điều này sẽ làm giảm tối đa sự lãng phí không cần thiết trong quá trình xây dựng.
Bản vẽ triển khai nội thất gồm 4 hạng mục sau:
- Phần xây dựng cơ bản của công trình nội thất bao gồm tường, trần, sàn, thạch cao, vách ngăn, cửa, cửa sổ…
- Bản vẽ chi tiết phần điện và thiết bị điện
- Bản vẽ chi tiết các hạng mục nội thất như: giường, tủ, kệ, bàn, ghế, đồ trang trí…
Xem thêm MẶT BẰNG PHÒNG NGỦ MASTER
5. Hướng dẫn cách đọc bản vẽ thiết kế nội thất
5.1 Cách đọc bản vẽ thiết kế nội thất mặt bằng đứng
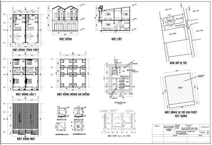
Mặt bằng đứng là hình chiếu thẳng góc thể hiện hình dáng bên ngoài của công trình. Nó thể hiện được hình ảnh bố trí tổng thể của ngôi nhà theo góc độ thẳng trên từng mặt với các bố trí tổng quan như: cửa đi, cửa sổ, ban công, mỹ thuật đường nét, tính cân đối giữa kích thước riêng của ngôi nhà.
Tùy theo từng công trình thiết kế đơn giản hay phức tạp, kiến trúc sư dẽ thể hiện được số lượng bản vẽ mặt đứng nhiều hay ít để gia chủ dễ hình dung.

5.2 Cách đọc bản vẽ thiết kế mặt bằng sàn
Sau khi tưởng tượng cắt đi phần trên của ngôi nhà, mặt bằng là hình chiếu phần còn lại của 1 tầng lên mặt phẳng. Phần mặt bằng dùng để bố trí các vật dụng và phân vùng phòng ốc, lối đi lại được bố trí trong phạm vi 1 tầng của ngôi nhà.
Mặt bằng lầu 1 là một bản vẽ nhìn từ trên xuống bố trí các phòng và vật dụng trong lầu 1 của ngôi nhà.

5.3 Cách đọc bản vẽ mặt cắt
Bản vẽ mặt cắt thể hiện công trình thu được khi dựng các mặt phẳng quy ước cắt từ trên xuống ngang qua ngôi nhà. Mặt cắt thể hiện không gian bên trong nhà, chiều cao nhà, số tầng, chiều cao các tầng, các lỗ cửa,… hình dáng chi tiết kiến trúc bên trong các phòng.

5.4 Các đọc bản vẽ phối cảnh
Bản vẽ phối cảnh là bản vẽ chiều 3D của công trình giúp gia chủ hình dung được hình ảnh công trình trong thực tế theo cách quan sát thông thường chứ không phải kỹ thuật. Bản vẽ phối cảnh giúp chủ nhà hình dung được công trình theo hướng trực quan sinh động với các chất liệu và màu sắc thực tế.

6. Lưu ý cần biết để đảm bảo chất lượng của bản vẽ nội thất
Thứ nhất, bản vẽ thiết kế chi tiết và đầy đủ. Một bản phác họa thiết kế nội thất càng đầy đủ và chi tiết sẽ giúp đơn vị thi công nội thất dễ dàng thực hiện. Nó phải phát họa được tổng thể thông tin từ: Vật liệu, kích thước, thông số kỹ thuật, diện tích, chi phí… của đồ nội thất.

Thứ hai, đảm bảo tính nhất quán. Yếu tố quyết định căn nhà có trở nên cân đối, hài hòa hay không là tính nhất quán của đồ dùng nội thất. Người thiết kế phải đảm bảo bố trí tất cả các món đồ nội thất trong nhà bổ trợ cho nhau, liên kết thành một tổng thể thống nhất.
Thứ ba, chọn đơn vị thi công, công ty thiết kế uy tín, chuyên nghiệp. Để có được bản vẽ thiết kế chất lượng đòi hỏi người thực hiện phải có trình độ chuyên môn cao. Luôn được cập nhật những xu hướng mới và có thể vận dụng nó vào tình hình thực tế. Do vậy việc chọn đúng đơn vị thi công là yếu tố vô cùng quan trọng.
Xem thêm PHỐI CẢNH NỘI THẤT

7. Các ý tưởng bản vẽ nội thất miễn phí
Trên đây là tất cả những kiến thức về bản vẽ nội thất mà chúng tôi muốn gợi ý đến cho bạn. Thông qua bài viết này bạn có thể biết được một bản vẽ nội thất cần những gì? Cách đọc ra sao? Hy vọng bài viết này sẽ hữu ích đối với bạn.
BÀI VIẾT LIÊN QUAN

Nếu bạn muốn thiết kế nội thất Đà Nẵng hãy liên hệ chúng tôi. Đội ngũ thiết kế của VN Thing vẫn cần mẫn làm việc hết sức hăng hái.
VN Thing ĐANG Ở ĐÀ NẴNG
- Điện thoại: 0901 998 468
- Messenger: https://m.me/noithat.Thing
- Chat Zalo: https://zalo.me/0901998468
- Địa chỉ: Tầng 2, số 45 Trần Ngọc Sương, Cẩm Lệ, Đà Nẵng





























